Cacaolab Flagship Store,
Hong Kong, HKSAR





The Cacaolab Flagship store is located within the prime shopping district of Causeway Bay in Hong Kong. Cacaolab is a new brand born in Hong Kong focused on bean-to-bar innovative chocolate crafted locally. Located within an existing commercial building at 20 Pak Sha Road, the 3-floor flagship store includes a retail store, bakery, cafe, and museum.


The three floors provide varying interior experiences with a facade design that ties all the floors together in a coherent aesthetic.


The facade is inspired by the geometric forms found in the Cacaolab logo. The ground floor storefront is painted in a rough black stucco with two arched openings, with an upper facade composed of a grid of square tiles with various embedded geometric shapes, creating a “monogram” effect. The matte-black facade is constructed of powder-coated metal panels and organized to frame punched openings and a large format media screen.





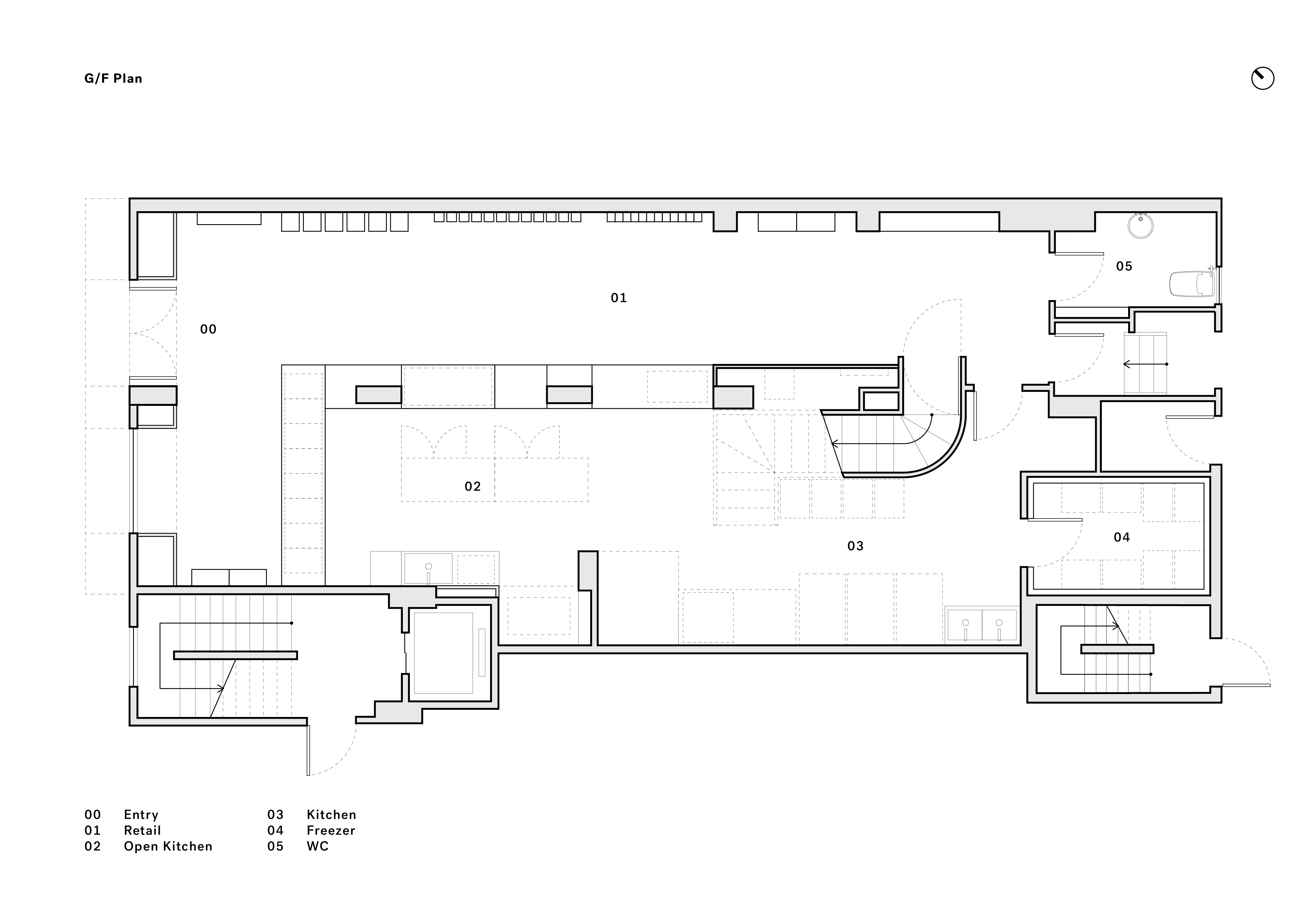
Beginning on the ground floor, visitors enter the Cacaolab retail space. Conceived as a “laboratory” for chocolate innovation, the ground floor has a lab-like sterile material palette. The walls and ceilings of the store are painted in grey metallic paint, while the kitchen is entirely clad in stainless steel and lit by a monolithic ceiling light. A series of wall-mounted stainless steel display units are custom-designed to celebrate each product's unique packaging. The open kitchen on the adjacent side serves espresso and soft-serve ice cream and showcases products such as fresh fruit bonbons and baked goods within the glass displays.


A mural at the back of the store leads to a monumental staircase that connects all floors. The staircase is clad in dark green perforated metal panels with concealed vertical linear fixtures that create a lantern effect. The continuous green stair acts as a vertical connector between all three floors, providing a moment of recalibration as one journeys through each floor.


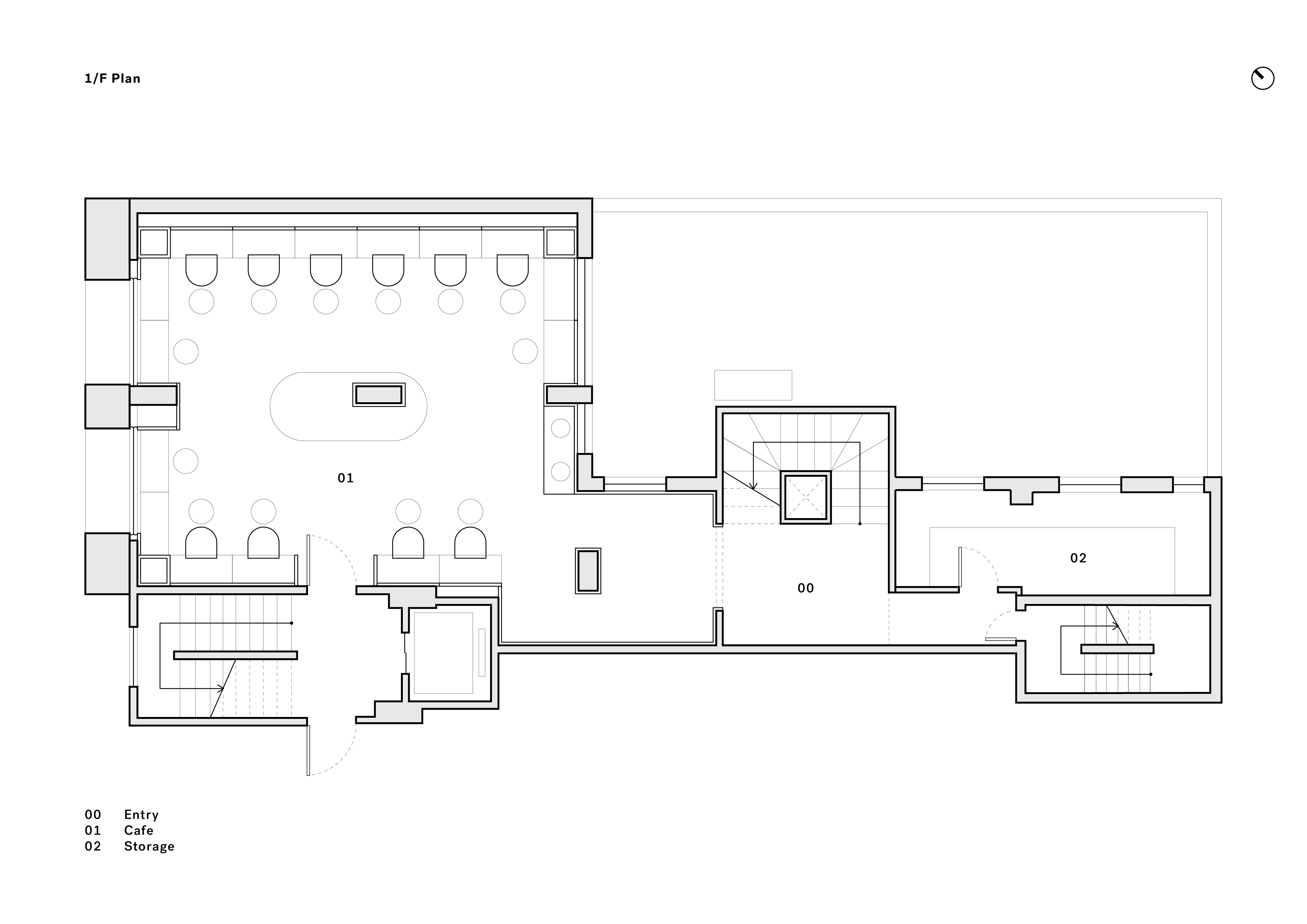
The cafe is located on the first floor and is designed with a warm and welcoming palette. A continuous wooden element functions as a bench, tabletop, and planter wraps around the existing white walls. Custom-designed circular tables and stools populate the cafe, allowing the space to be rearranged to suit various group sizes.




The second floor is the Cacao Museum, a space perceived as a dark gallery and lounge. Exhibition materials including replicas of artifacts imported from South America are organized sequentially to educate visitors about the origin of cacao, the history of cacao trading, and different cacao types. At the heart of this floor is a marble-clad Tasting Bar, which serves a duo purpose—to host an omakase-type dining experience and chocolate-making workshops. 


The Cacaolab flagship store is a new type of retail store where one can fully experience and learn about its product. The spatial design of each of the three floors is specifically curated for its program, providing a wide range of atmospheres. At the same time, an iconic facade binds all the floors together, establishing a memorable presence within the bustling Pak Sha Road, and inviting pedestrians to enter and explore locally crafted innovative chocolate products. 




 


Location: Hong Kong, HKSAR
Client: Cacaolab
Dates: 2023
Status: Completed
Scope: Architectural Design (Exterior) & Interior Design
Size: 290sqm (3,120sf)
Program: Retail, Cafe, Museum
Team: Kelvin Ho, Nicolas Lee, with Matthew Michalski
Photography: Xu Liang Leon

Press:
AN Interior 
Frame Magazine
Super Future
The Architect’s Newspaper

info@other-projects.co


Mark